- Наявність: Нет в наличии
- Модель: RBLS-500
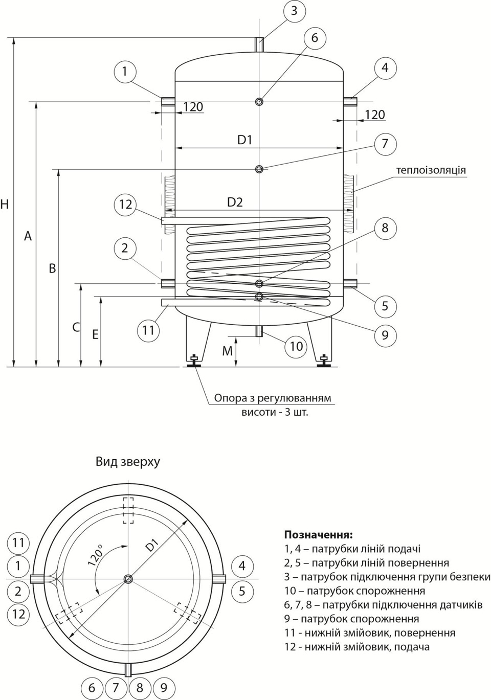
Особливості буферної ємності RODA RBLS-500
Об'єм 500 л. Теплова місткість – 26 кВт.
Нижній змійовик з чорної сталі – для додаткового підключення теплового насоса, сонячного колектора.
Устрій
Теплоакумулюючі ємності Roda серії RBLS оснащені двома патрубками подачі теплоносія та двома патрубками повернення.
Три патрубки для підключення термометрів.
Патрубок для групи безпеки.
Патрубка для підключення Тена немає.
За запитом буферні ємності можуть поставлятися з встановленим ревізійним фланцем діаметром 150 мм.

Загальні характеристики:
-
Виготовлений з якісної холоднокатаної сталі 3 мм.
-
Максимальна робоча температура 100°С.
-
Максимальний робочий тиск в ємності 3 бари, у змійовику – до 6 бар.
-
Теплоізоляція товщиною 100 мм з еластичного пінополіуретану.
-
Декоративний захисний чохол зі штучної шкіри.
-
Підвищує ефективність роботи твердопаливного або електричного котла, теплового насоса.
-
Оберігає від перегріву системи опалення.
-
Дозволяє гідравлічно і термічно вирішити контур генерації тепла і його розподілу.
-
Збільшує ресурс роботи твердопаливного котла і зменшує частоту його чистки.
-
Збільшує межтопочній інтервал твердопаливного котла.
-
Сприяє економії палива або витрат на електроенергію (за рахунок максимального використання нічного тарифу).
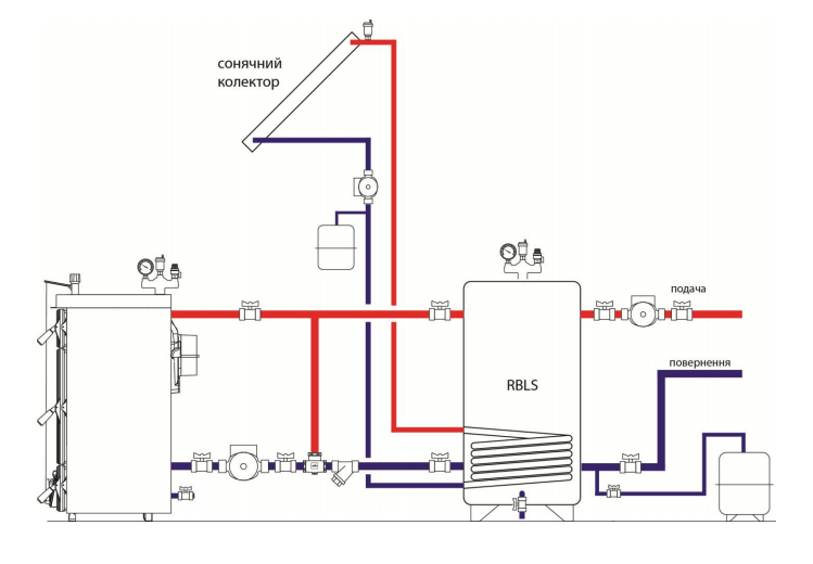
Схема підключення RBLS
